Kumar Path Towers

  • 80L to 1.8cr

Overview

Rera No. P52100026039
  • Residential
  • Property Type
  • Dec 2028
  • Possession
  • 2, 3 BHK
  • Configuration
  • 900 to 2100
  • Carpet Area

Description

Spread over 36,500 sq ft on the ground it combines with a 3 storied clubhouse structure (21,450 sq ft) to provide a relaxing yet exciting “escape” for the residents of Regency ASTRA.

All necessary facilities along with a plethora of new age amenities are available here exclusively for the residents.

  • Address: Baner Pune
  • City: Pune
  • Zip/Postal Code: 411001
  • Area: Baner

Details

Updated on April 9, 2026 at 10:13 am
  • MahaRERA No - P52100026039
  • Carpet Area 900 to 2100
  • Possession Dec 2028
  • Configuration 2, 3 BHK
  • Property Type Residential
  • Property Status For Sale

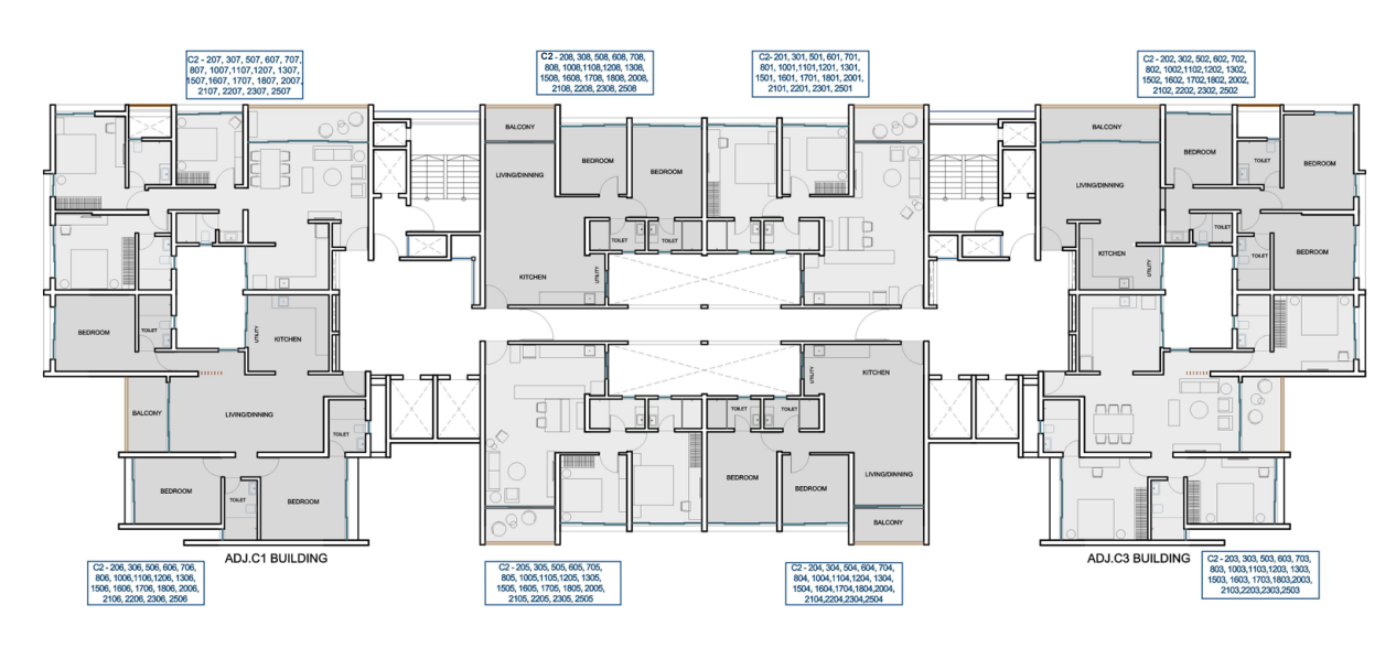
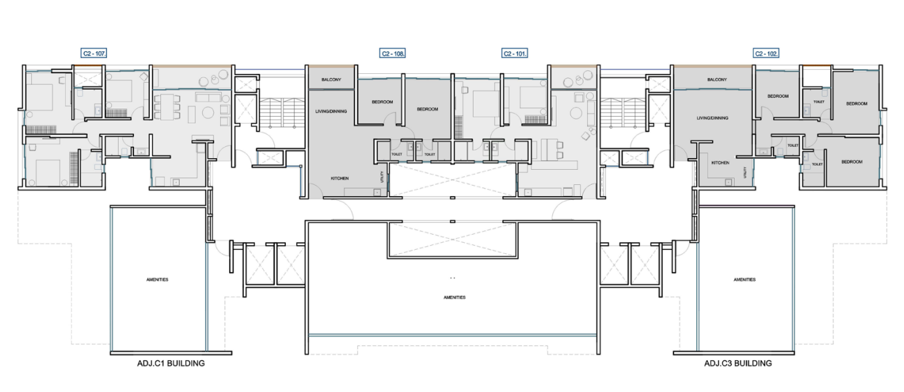
Floor Plans

Cost Sheet

Mansi_Homes_Cost_Sheet

Contact Information

View Listings
olatechsco_mansi
  • olatechsco_mansi

Enquire About This Property

Similar Listings